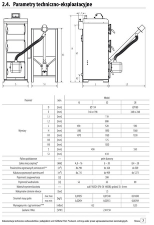
PEREKO KSR Beta Pellet - 20 kW
- Kocioł c.o. na pellet
Bezpośredni kontakt z opiekunem.
+48 515 350 087+48 513 330 233
Nasi konsultanci są dostępni dla Państwa codziennie od 9:00 do 18:00.
Vat 8% to wyjątkowa okazja na dużą oszczędność.
Wszystkie urządzenia wymagające montażu oferowane są zawsze w naszym sklepie w dwóch cenach. Pierwsza z nich to cena uwzględniająca podatek Vat w wysokości 8%, druga z podatkiem Vat 23%.
Skąd dwie stawki podatku Vat w ofercie?
W przypadku zakupu urządzenia z preferencyjną stawką Vat 8% urządzenie zostaje sprzedane wraz z usługą montażu. Ustawodawca przewidział taką atrakcyjną ulgę dla usług wykonanych w obiektach zaliczanych do budownictwa objętego społecznym programem mieszkaniowym.
To dla kupującego bardzo atrakcyjna alternatywa, ponieważ gwarantuje realne oszczędności w wysokości 15 % ceny netto urządzenia. Montaż jako usługa również objęty jest preferencyjną stawką Vat 8%.*
*Szczegółowych informacji na temat montażu udzieli Państwo obsługa AleKotły.pl.
Czytaj więcejZakupy na raty to korzystna i nieobciążająca domowego budżetu forma finansowania.
Zakup na raty to najszybszy i najprostszy sposób na szybką wymianę przestarzałego kotła lub montaż całkowicie nowego źródła ciepła. Oferujemy kilka systemów ratalnych z możliwością rozłożenia spłaty nawet na 48 miesięcy.
Teraz także montaż urządzenia może zostać dodatkowo wliczony do systemu ratalnego.
Szybka i bezpieczna dostawa z AleKotły.pl.
Głównym obszarem działalności naszej firmy są miejscowości z województw zachodniopomorskiego, pomorskiego, lubuskiego, kujawsko-pomorskiego, dolnośląskiego i opolskiego. W tych rejonach transport zazwyczaj realizowany jest naszym transportem firmowym.
Oferujemy Państwu także dostawy na terenie całego kraju, które obsługiwane są przez firmy kurierskie a w przypadku dużych ładunków inne specjalistyczne firmy spedycyjne.
Od pomysłu do realizacji Twojej kotłowni c.o.
Czysta i nowoczesna kotłownia w domu to w dzisiejszych czasach praktycznie standard. Pracownicy AleKotły.pl zajmą się kompleksowo urządzeniem każdej kotłowni co, niezależnie od źródła pzasilania. Każdy projekt wymaga indywidualnego podejścia i innego dedykowanego rozwiązania. Realizujemy zadania od prostych kotłowni C.O. po skomplikowane rozwiązania wymagające osobnych projektów wykonanych przez uprawnionych projektantów.
Twoja nowa kotłownia to teraz nasz problem?
Czytaj więcejCzyste Powietrze - to nasz priorytet. Bądź Eko razem z AleKotły.pl.
Wsparcie może wynosić nawet do 100% poniesionych nakładów na modernizację źródła ciepła.
Wymiana i montaż nowego źródła ciepła to ważna decyzja, którą podejmujemy na wiele lat. Obecnie zakup całkowicie ekologicznego źródła ciepła można w dużej mierze sfinansować przy udziale środków z rządowych programów wsparcia w postaci dotacji lub innych form dofinansowania.
Wymiana i montaż nowego źródła ciepła to także ogromne oszczędności na kosztach ogrzewania, wygoda i komfort w codziennym życiu. Czysta, bezobsługowa kotłownia to kluczowy element każdej nieruchomości.
Nie czekaj dłużej i zrób pierwszy krok.
Zacznij od formularza inwestoraVAT8%
Pamiętaj! Jeżeli zdecydujesz się na kompleksową usługę w AleKotły.pl, czyli wybierzesz dowolne urządzenie wraz z profesjonalnym montażem rozliczymy całą transakcję według preferencyjnej stawki podatku Vat w wysokości 8%. To aż 15% oszczędności. Zobacz więcej informacji na temat stawki Vat 8%.
Kocioł c.o. na pellet, 5 klasa, EcoDesign - PEREKO KSR Beta Pellet - 20 kW
PIERWSZE URUCHOMIENIE KOTŁA PREZ AUTORYZOWANY SERWIS PRODUCENTA ORAZ INDYWIDUALNY INSTRUKTARZ OBSŁUGI U KLIENTA - GRATIS
Ekologiczne rozwiązanie i szeroki zakres mocy.
Nowoczesny kocioł KSR Beta Pelet dostosowany jest do spalania peletu – ekologicznego paliwa naturalnych zasobów odnawialnych. Granulki peletu, dzięki zastosowaniu palnika PELLAS, wypalają się niemal całkowicie. Funkcja automatycznego zapłonu, płynna regulacja mocy oraz niski pobór prądu sprawiają, że użytkowanie kotła jest komfortowe i ekonomiczne. Szeroka gama mocy umożliwia optymalny dobór urządzenia. Model KSR Beta Pelet posiada piątą klasę emisji wg normy PN EN 303-5:2012 oraz certyfikat ECODESIGN.
Innowacyjna technologia.
Konstrukcja korpusu i wymiennika została opracowana w taki sposób, aby urządzenie przekazywało ciepło możliwie najefektywniej, zachowując przy tym wieloletnią szczelność i wysoką bezawaryjność. System S.Control automatycznie steruje pracą kotła poprzez rozpalanie, czyszczenie oraz kontrolę płomienia. Sterownik obsługuje 3 pompy (c.o., c.w.u oraz podłogową), siłownik zaworu mieszającego oraz ogranicznik temperatury (STB). Automatyczna zapalarka umożliwia samoczynne rozpalenie w momencie wskazanym przez użytkownika. Dodatkowy moduł Net Control służy do zdalnego sterowania wszystkimi dostępnymi parametrami przez internet. Moduły uzupełniające Room Control i Room Control Touch dodatkowo podnoszą komfort obsługi.
Bezpieczeństwo na pierwszym miejscu.
Konstrukcja całego urządzenia została opracowana z dbałością o bezpieczeństwo i komfort użytkowania. Kosz zasypowy jest odseparowany od korpusu kotła, co eliminuje ryzyko jego niepożądanego nagrzewania się. Dodatkowo zostały zastosowane automatyczne systemy bezpieczeństwa takie jak: system spalania nadciśnieniowego, który zapobiega cofnięciu się płomienia oraz czujnik STB, który wyłącza zasilanie podajnika zewnętrznego w razie zbyt wysokiej temperatury.
5 Klasa - Najwyższa
Od 1 lipca 2018 r. zaczął obowiązywać zakaz sprzedaży kotłów o klasie emisji niższej niż 5, zgodnie z normą PN-EN 303-5:2012.
Kotły 5 klasy, to urządzenia które przeszły rygorystyczne badania emisji spalin oraz otrzymały certyfikat 5 klasy według normy PN EN 303-5:2012.

Nominalna moc grzewcza urządzenia.
Rodzaj spalanego paliwa.
Sterowniki charakteryzują się intuicyjną i prostą obsługą. Dostępne menu tekstowe i graficzne pozwala na szybką konfigurację nawet rozbudowanego systemu grzewczego. Pracę urządzeń można konfigurować z poziomu regulatora pokojowego lub przez aplikacje internetowe dostępne na komputer oraz urządzenia mobilne dzięki modułowi Net Control.
Najnowsza Dyrektywa Ecodesign dotycząca wymagań emisyjnych i energetycznych dla kotłów na paliwo stałe weszła w życie 1 stycznia 2020 r.
Ecodesign to oficjalna Dyrektywa Parlamentu Europejskiego z kwietnia 2015 r. dotycząca wymagań emisyjno-energetycznych dla kotłów na paliwo stałe. Wymagania Ekoprojektu obowiązują od 1 stycznia 2020 r. Dyrektywa zakłada, że nowoczesne urządzenia grzewcze powinny zapewniać wysoką sprawność i niską wartość emisyjną bez względu na to, czy kocioł będzie pracować z nominalną lub obniżoną mocą. Od stycznia 2020 wymagania zawarte w Ekoprojekcie staną się obligatoryjne dla wszystkich urządzeń grzewczych sprzedawanych na rynku zarówno w Polsce, jak i w całej Unii Europejskiej. Dokonując zakupu kotła z certyfikatem Ekoprojektu, mamy pewność, że spełnia on normy ekologiczne przez cały czas jego eksploatacji. Ważniejsze jednak punktu widzenia użytkownika jest to, że nowe wymagania pozwolą zaoszczędzić nawet do 25% energii.

Kontrola urządzenia przez internet. Dostęp zdalny spoza domu lub biura.
Pełna nazwa rejestrowa producenta.














