PEREKO KSP Pellet - 20 kW
- Kocioł c.o. na pellet
Bezpośredni kontakt z opiekunem.
+48 515 350 087+48 513 330 233
Nasi konsultanci są dostępni dla Państwa codziennie od 9:00 do 18:00.
Vat 8% to wyjątkowa okazja na dużą oszczędność.
Wszystkie urządzenia wymagające montażu oferowane są zawsze w naszym sklepie w dwóch cenach. Pierwsza z nich to cena uwzględniająca podatek Vat w wysokości 8%, druga z podatkiem Vat 23%.
Skąd dwie stawki podatku Vat w ofercie?
W przypadku zakupu urządzenia z preferencyjną stawką Vat 8% urządzenie zostaje sprzedane wraz z usługą montażu. Ustawodawca przewidział taką atrakcyjną ulgę dla usług wykonanych w obiektach zaliczanych do budownictwa objętego społecznym programem mieszkaniowym.
To dla kupującego bardzo atrakcyjna alternatywa, ponieważ gwarantuje realne oszczędności w wysokości 15 % ceny netto urządzenia. Montaż jako usługa również objęty jest preferencyjną stawką Vat 8%.*
*Szczegółowych informacji na temat montażu udzieli Państwo obsługa AleKotły.pl.
Czytaj więcejZakupy na raty to korzystna i nieobciążająca domowego budżetu forma finansowania.
Zakup na raty to najszybszy i najprostszy sposób na szybką wymianę przestarzałego kotła lub montaż całkowicie nowego źródła ciepła. Oferujemy kilka systemów ratalnych z możliwością rozłożenia spłaty nawet na 48 miesięcy.
Teraz także montaż urządzenia może zostać dodatkowo wliczony do systemu ratalnego.
Szybka i bezpieczna dostawa z AleKotły.pl.
Głównym obszarem działalności naszej firmy są miejscowości z województw zachodniopomorskiego, pomorskiego, lubuskiego, kujawsko-pomorskiego, dolnośląskiego i opolskiego. W tych rejonach transport zazwyczaj realizowany jest naszym transportem firmowym.
Oferujemy Państwu także dostawy na terenie całego kraju, które obsługiwane są przez firmy kurierskie a w przypadku dużych ładunków inne specjalistyczne firmy spedycyjne.
Od pomysłu do realizacji Twojej kotłowni c.o.
Czysta i nowoczesna kotłownia w domu to w dzisiejszych czasach praktycznie standard. Pracownicy AleKotły.pl zajmą się kompleksowo urządzeniem każdej kotłowni co, niezależnie od źródła pzasilania. Każdy projekt wymaga indywidualnego podejścia i innego dedykowanego rozwiązania. Realizujemy zadania od prostych kotłowni C.O. po skomplikowane rozwiązania wymagające osobnych projektów wykonanych przez uprawnionych projektantów.
Twoja nowa kotłownia to teraz nasz problem?
Czytaj więcejCzyste Powietrze - to nasz priorytet. Bądź Eko razem z AleKotły.pl.
Wsparcie może wynosić nawet do 100% poniesionych nakładów na modernizację źródła ciepła.
Wymiana i montaż nowego źródła ciepła to ważna decyzja, którą podejmujemy na wiele lat. Obecnie zakup całkowicie ekologicznego źródła ciepła można w dużej mierze sfinansować przy udziale środków z rządowych programów wsparcia w postaci dotacji lub innych form dofinansowania.
Wymiana i montaż nowego źródła ciepła to także ogromne oszczędności na kosztach ogrzewania, wygoda i komfort w codziennym życiu. Czysta, bezobsługowa kotłownia to kluczowy element każdej nieruchomości.
Nie czekaj dłużej i zrób pierwszy krok.
Zacznij od formularza inwestoraVAT8%
Pamiętaj! Jeżeli zdecydujesz się na kompleksową usługę w AleKotły.pl, czyli wybierzesz dowolne urządzenie wraz z profesjonalnym montażem rozliczymy całą transakcję według preferencyjnej stawki podatku Vat w wysokości 8%. To aż 15% oszczędności. Zobacz więcej informacji na temat stawki Vat 8%.
Kocioł c.o. na pellet, 5 klasa, EcoDesign - PEREKO KSP Pellet - 20 kW
PIERWSZE URUCHOMIENIE KOTŁA PREZ AUTORYZOWANY SERWIS PRODUCENTA ORAZ INDYWIDUALNY INSTRUKTARZ OBSŁUGI U KLIENTA - GRATIS
Ekologiczne ogrzewanie kotłem na paliwo stałe.
Kocioł KSP Pelet został zaprojektowany z myślą o ogrzewaniu, które jest przyjazne środowisku naturalnemu. Ma przyznaną najwyższą, 5 klasę emisji spalin według normy PN EN 303-5:2012 oraz certyfikat EKODESIGN. Dedykowanym paliwem do modelu KSP Pelet jest pelet drzewny, jednak urządzenie dostosowane jest do spalania jako paliwa zastępczego, innych rodzajów peletu (np. ze słomy, łupin nasion m.in. słonecznika). Granulki peletu drzewnego wypalają się niemal całkowicie, pozostawiając niewielkie ilości popiołu, który można wykorzystywać jako pełnowartościowy nawóz. Wysoka wartość energetyczna peletu w połączeniu z funkcją automatycznego zapłonu, płynną regulacją mocy oraz niskim poborem prądu wpływają dodatkowo na ekonomiczną pracę kotła.
Najwyższy stopień zaawansowania technologicznego.
KSP Pelet to innowacyjne osiągnięcie w dziedzinie kotłów na paliwa stałe pod względem wydajności, automatyzacji obsługi i troski o środowisko naturalne. Ergonomiczna budowa urządzenia pozwala na dostosowanie odpowiedniego rozmieszczenia kotła niezależnie od wielkości kotłowni, ograniczając przy tym straty cieplne. Wysoka wydajność urządzenia (94%) oraz zminimalizowana potrzeba czyszczenia, zostały osiągnięte dzięki nowej konstrukcji wymiennika ciepła. Kocioł jest wyjątkowo funkcjonalny ze względu na niewielkie rozmiary, możliwość ustawienia kosza zasypowego w dowolnym miejscu kotłowni oraz montaż drzwiczek z prawej lub z lewej strony.
Obsługa ograniczona do minimum.
Pracę urządzenia kontroluje nowoczesny system sterowania PELLAS z płynną regulacją FUZZY LOGIC, który obsługuje 3 pompy (c.o., c.w.u oraz podłogową), siłownik zaworu mieszającego oraz ogranicznik temperatury (STB). Ponadto odpowiada on za uruchomienie kotła, kontrolowanie poziomu mocy i czyszczenie. Automatyczna zapalarka umożliwia samoczynne rozpalenie w dowolnym, wskazanym przez użytkownika momencie. W przypadku braku dostawy prądu bezzwłocznie po jego przywróceniu kocioł może kontynuować pracę, ponieważ wszystkie ustawienia są zapisywane w pamięci systemu. Wydłużony czas bezobsługowej pracy kotła został osiągnięty dzięki zastosowaniu specjalnej technologii mieszania paliwa w komorze paleniskowej. Innowacyjna metoda spalania nadciśnieniowego chroniąca przed cofnięciem płomienia oraz stały monitoring temperatury gwarantują podwyższone bezpieczeństwo użytkowania.
5 Klasa - Najwyższa
Od 1 lipca 2018 r. zaczął obowiązywać zakaz sprzedaży kotłów o klasie emisji niższej niż 5, zgodnie z normą PN-EN 303-5:2012.
Kotły 5 klasy, to urządzenia które przeszły rygorystyczne badania emisji spalin oraz otrzymały certyfikat 5 klasy według normy PN EN 303-5:2012.
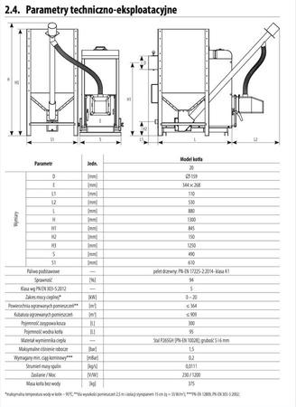
Nominalna moc grzewcza urządzenia.
Rodzaj spalanego paliwa.
Najnowsza Dyrektywa Ecodesign dotycząca wymagań emisyjnych i energetycznych dla kotłów na paliwo stałe weszła w życie 1 stycznia 2020 r.
Ecodesign to oficjalna Dyrektywa Parlamentu Europejskiego z kwietnia 2015 r. dotycząca wymagań emisyjno-energetycznych dla kotłów na paliwo stałe. Wymagania Ekoprojektu obowiązują od 1 stycznia 2020 r. Dyrektywa zakłada, że nowoczesne urządzenia grzewcze powinny zapewniać wysoką sprawność i niską wartość emisyjną bez względu na to, czy kocioł będzie pracować z nominalną lub obniżoną mocą. Od stycznia 2020 wymagania zawarte w Ekoprojekcie staną się obligatoryjne dla wszystkich urządzeń grzewczych sprzedawanych na rynku zarówno w Polsce, jak i w całej Unii Europejskiej. Dokonując zakupu kotła z certyfikatem Ekoprojektu, mamy pewność, że spełnia on normy ekologiczne przez cały czas jego eksploatacji. Ważniejsze jednak punktu widzenia użytkownika jest to, że nowe wymagania pozwolą zaoszczędzić nawet do 25% energii.

Kontrola urządzenia przez internet. Dostęp zdalny spoza domu lub biura.
Pełna nazwa rejestrowa producenta.















